マンション ダイアパレス八王子富士見台
所在地
八王子市大和田町5丁目
2,999万円
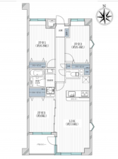
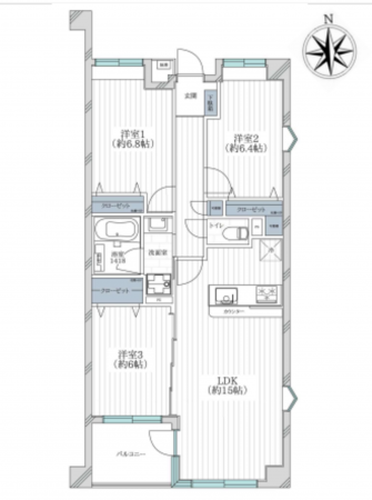
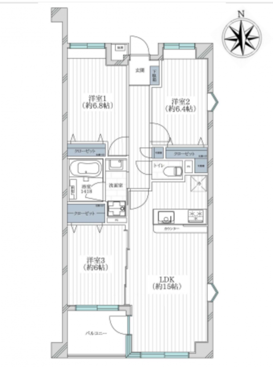
73.18m²
3LDK
スーパーやドラッグストアが近くにありとても便利☆
物件概要
- 交通
-
中央線 八王子駅 まで 徒歩24分
- 専有面積
- 壁芯 73.18㎡
- バルコニー
-
5.40㎡ (南側)
面積不明 - 所在階/階数
- 2階/7階
- 築年数
-
1997年
(平成9)
9月
築28年 - 建ぺい率
- 容積率
- 土地権利
- 所有権
- 構造および階数
- RC(鉄筋コンクリート) 造 地上7階建
- 総戸数
- 42戸
- 小学校区
- 第十 ( 750m )
- 中学校区
- 第一 ( 1100m )
- 地目
- 現況
- 空
- 引渡時期
- 即時
- 駐車場
- 空無
- 駐車場月額
- 管理形態
- 全部委託
- 管理方式
- 管理人日勤
- 管理会社
- 株式会社東急コミュニティー
- 管理費
- 15,300円
- 修繕積立費
- 25,610円
- 上水道
- 下水道
- ガス
- 都市計画
- 用途地域
- 1種低層
- 設備・条件
- 食器洗浄乾燥機、浴室乾燥機、モニタ付インターホン、追い焚き、エレベーター
- 備考
-
省我保育園まで・・・・・・・・・徒歩11分(約800m)
スーパーアルプス大和田店まで・・徒歩7分(約450m)
セブン-イレブン 大谷店まで・・・徒歩6分(約400m)
八王子富士見郵便局まで・・・・・徒歩1分(約92m)
伊藤内科消化器医院まで・・・・・徒歩11分(約750m)
北の原公園まで・・・・・・・・・徒歩7分(約450m)
- 取引態様
- 仲介

