新築一戸建て 八王子市東浅川町
所在地
八王子市東浅川町
4,440万円
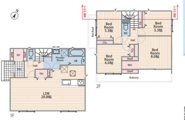
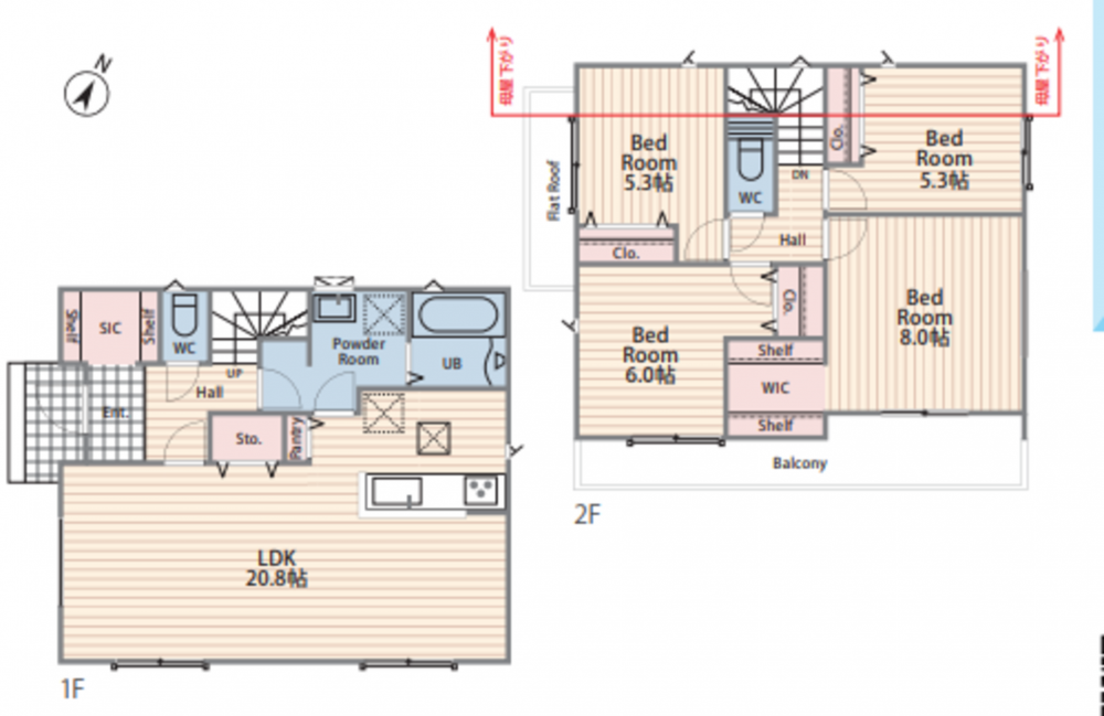
33.06坪
4LDK
車2台停められます(車種による)☆ 近くの綾南公園では四季折々の草花が楽しめます☆
ヤオコー八王子並木町店まで・・・・徒歩16分(約1200m)
セブンイレブン八王子陵南店まで・・徒歩8分(約600m)
八王子西郵便局まで・・・・・・・・徒歩13分(約950m)
澤田内科クリニックまで・・・・・・徒歩10分(約700m)
陵南公園分園まで・・・・・・・・・徒歩10分(約700m)
敬愛 クレヨン保育園まで・・・・・・徒歩8分(約600m)
物件概要
- 交通
-
京王高尾線 狭間駅 まで 徒歩17分
中央線 高尾駅 まで 徒歩18分
- 接道状況
- 南西側 公道
- 土地面積
- 実測 151.93㎡ (45.95坪)
- 建物面積
- 109.30㎡ (33.06坪)
- 築年数
- 2025年 (令和7) 11月
- 建ぺい率
- 60%
- 容積率
- 200%
- 土地権利
- 所有権
- 構造および階数
- 木造
- 小学校区
- 横山第二 ( 1000m )
- 中学校区
- 陵南 ( 700m )
- 私道負担
- 地目
- 現況
- 空
- 引渡時期
- 駐車場
- 有
- 上水道
- 下水道
- ガス
- 都市計画
- 市街化区域
- 用途地域
- 1種住居
- 設備・条件
- 備考
- 取引態様
- 仲介

