新築一戸建て 八王子市石川町2号棟/3
所在地
八王子市石川町2号棟/3
3,480万円
30.05坪
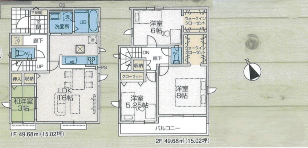
4LDK
近くにおいしい鰻屋さんがある☆ ウォークインクローゼットが2個☆
ひなた保育園まで・・・・・・・・・・・徒歩4分(約280m)
スーパーアルプス宇津木台店まで・・・・車 6分(約2100m)
セブン-イレブン八王子田島橋店まで・・徒歩6分(約450m)
日野台郵便局まで・・・・・・・・・・・徒歩17分(約1200m)
田島橋クリニックまで・・・・・・・・・徒歩8分(約550m)
石川東公園まで・・・・・・・・・・・・徒歩3分(約220m)
物件概要
- 交通
-
八高線 小宮駅 まで 徒歩13分
- 接道状況
- 公道 間口約5m
- 土地面積
- 132.18㎡ (39.98坪)
- 建物面積
- 99.36㎡ (30.05坪)
- 築年数
- 2026年 (令和8) 2月
- 建ぺい率
- 40%
- 容積率
- 80%
- 土地権利
- 所有権
- 構造および階数
- 木造 地上2階建
- 小学校区
- 小宮 ( 800m )
- 中学校区
- 石川 ( 1760m )
- 私道負担
- 地目
- 宅地
- 現況
- 引渡時期
- 予定
- 駐車場
- 上水道
- 公共
- 下水道
- 公共
- ガス
- 都市ガス
- 都市計画
- 市街化区域
- 用途地域
- 1種低層
- 設備・条件
- モニタ付インターホン、トイレ2箇所
- 備考
- 取引態様
- 仲介

