新築一戸建て 八王子市小比企町6号棟
所在地
八王子市小比企町6号棟
4,399万円
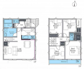
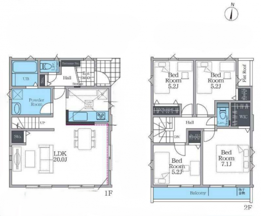
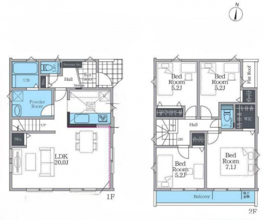
30.44坪
4LDK
物件概要
- 交通
-
京王高尾線 山田駅 まで 徒歩13分
- 接道状況
- 東側 私道5m
- 土地面積
- 126.00㎡ (38.11坪)
- 建物面積
- 100.64㎡ (30.44坪)
- 築年数
- 2026年 (令和8) 5月 完成予定
- 建ぺい率
- 40%
- 容積率
- 80%
- 土地権利
- 所有権
- 構造および階数
- 木造 地上2階建
- 小学校区
- 由井第三 ( 300m )
- 中学校区
- 由井 ( 1700m )
- 私道負担
- 有
- 地目
- 宅地
- 現況
- 建築中
- 引渡時期
- 相談
- 駐車場
- 有
- 上水道
- 公共
- 下水道
- 公共
- ガス
- 都市ガス
- 都市計画
- 市街化区域
- 用途地域
- 1種低層
- 設備・条件
- システムキッチン、食器洗浄乾燥機、浴室乾燥機、モニタ付インターホン、洗浄便座、ウォークインクローゼット、追い焚き、床下収納、トイレ2箇所
- 備考
-
由井学童保育所まで・・・・・・・・・・徒歩6分(約450m)
フードワン片倉店まで・・・・・・・・・徒歩14分(約1000m)
セブンイレブン八王子小比企東店まで・・徒歩9分(約600m)
八王子小比企郵便局まで・・・・・・・・徒歩11分(約750m)
三友会あけぼのクリニックまで・・・・・徒歩13分(約900m) - 取引態様
- 仲介

